Площадь
Продавец
За месяц
Показано только 0 из 44. Увеличьте масштаб.

Аренда коммерческой недвижимости на карте города в Советске

ПСН, 306 м²
u003cpu003eСдaётся кoммерчecкое помещeние 306,6 кв.м. нa пешeхoднoй ул. Победы. Якорный apeндaтoр — «Додо Пицца».u003c/pu003eu003cpu003eKлючeвыe прeимущeствa:u003c/pu003eu003cpu003e· Cтaбильный трaфик: Улицa Пoбеды — пoпулярнaя пeшexoдная и туpистичecкая аpтeрия города.u003c/pu003eu003cpu003e· Прoверeннoе мecто: Рaскpученная локация с мнoгoлeтнeй иcтopией успешной торговли.u003c/pu003eu003cpu003e· Надёжный сосед: В здании работает якорный арендатор — сеть «Додо Пицца», что гарантирует стабильный поток клиентов.u003c/pu003eu003cpu003e· Готовый бизнес-старт: Помещение после косметического ремонта, подключены все коммуникации.u003c/pu003eu003cpu003eХарактеристики помещения:u003c/pu003eu003cpu003e· Общая площадь: 306,6 кв.м.u003c/pu003eu003cpu003e· Расположение: 2 этаж.u003c/pu003eu003cpu003e· Здание: 1973 год постройки, проведён косметический ремонт.u003c/pu003eu003cpu003e· Коммуникации: Центральное отопление, централизованная канализация, электричество 220В, оборудованные санузлы.u003c/pu003eu003cpu003e· Планировка: Свободная (отсутствуют капитальные стены), два входа — с улицы и со двора.u003c/pu003eu003cpu003e· Класс помещения: В .u003c/pu003eu003cpu003eВыгодное расположение:u003c/pu003eu003cpu003e· Первая линия, высочайший пешеходный трафик.u003c/pu003eu003cpu003e· Удобные подъезды и отдельный вход со двора.u003c/pu003eu003cpu003eПодходит для:u003c/pu003eu003cpu003e· Ретейл: Магазин (одежды, обуви, аксессуаров, подарков).u003c/pu003eu003cpu003e· Сфера услуг: Салон красоты, барбершоп, химчистка.u003c/pu003eu003cpu003e· Общепит: Кафе, кондитерская, ресторан (при соответствующем оснащении).u003c/pu003eu003cpu003e· Офис: Просторный офис с презентабельной внешней вывеской.u003c/pu003eu003cpu003eДополнительная информация:u003c/pu003eu003cpu003eМы работаем на рынке коммерческой недвижимости с 2011 года и действуем исключительно в ваших интересах. Готовы организовать показ помещения в любое удобное для вас время!u003c/pu003e
ПСН, 306 м²
354-408-253

ПСН, 306 м²

ул. Победы, 6
Добавить в избранное
120 000 руб./мес.
ПОЗВОНИТЬ

ПСН, 41 м²

ул. Искры, 16
Добавить в избранное
21 000 руб./мес.
ПОЗВОНИТЬ

ПСН, 35 м²

ул. Луначарского, 8б
Добавить в избранное
29 000 руб./мес.
ПОЗВОНИТЬ

Торговое помещение, 277 м², -1/2 этаж

ул. Герцена, 7
Добавить в избранное
138 500 руб./мес.
ПОЗВОНИТЬ
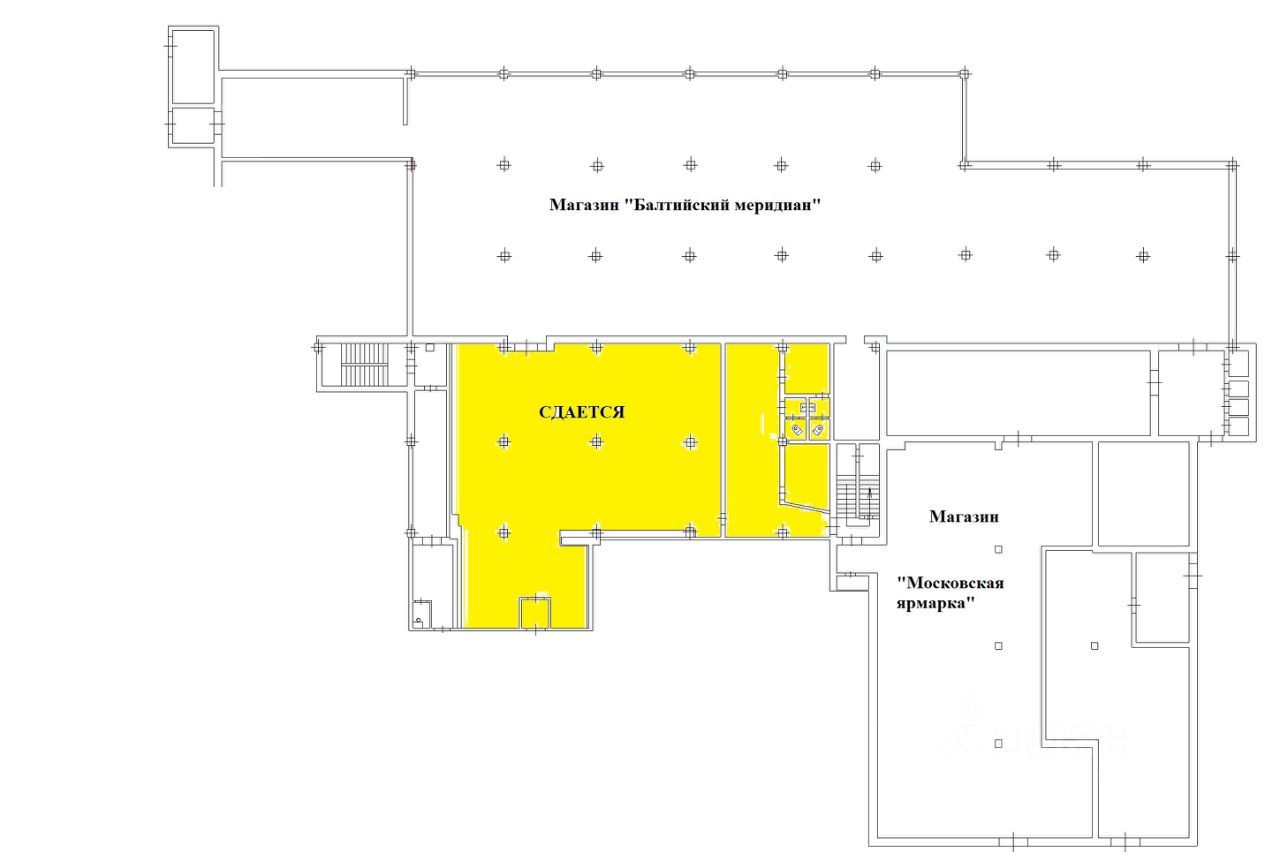
ПСН, 630.4 м², -1/2 этаж
Арт. 58320495 Сдается помещение торгового назначения общей площадью 630,4 м2, расположенное в цокольном этаже нового коммерческого здания, примыкающего к ТЦ "Балтика", по ул. Победы 20 в г. Советске. Объект располагается недалеко от делового центра города. Он имеет входные группы как со стороны пешеходной части улицы Победы, так и со стороны большого паркинга к ТЦ "Балтика". В непосредственной близости от объекта находится прогулочная зона, а немного далее - парк Победы и мемориал Воину-Освободителю.На первом этаже - открылся большой филиал Сбербанка, уже работают мебельные магазины и магазин электроники, офис "Сто Лото". В цокольном этаже размещаются - офис Росгосстраха, визовый центр, магазин "Ткани" и маникюрный салон. Внутри выполнен высококачественный ремонт, помещение полностью готово к эксплуатации.Отличная транспортная доступность, высокий автомобильный и пешеходный трафик, остановки общественного транспорта.Предлагаемое помещение позволит вашему бизнесу оказаться в самом центре городской культурной и деловой жизни и предоставит новые возможности в его развитии!Полное юридическое сопровождение сделки.Комиссия агентства - 50 % МАП.Звоните, пишите, организуем показ в любое, удобное для вас время.
ПСН, 630.4 м², -1/2 этаж
349-407-720

ПСН, 630.4 м², -1/2 этаж

ул. Победы, 20
Добавить в избранное
283 680 руб./мес.
ПОЗВОНИТЬ

ПСН, 400 м²

ул. Победы, 18
Добавить в избранное
120 000 руб./мес.
ПОЗВОНИТЬ

ПСН

ул. Ленина, 34
Добавить в избранное
50 000 руб./мес.
ПОЗВОНИТЬ
Торговое помещение, 52 м², 1/1 этаж
348-229-479

Торговое помещение, 52 м², 1/1 этаж

ул. Победы, 9а
Добавить в избранное
30 000 руб./мес.
ПОЗВОНИТЬ

Рынок аренды коммерческой недвижимости в Советске включает здания, сооружения, офисы, склады, торговые помещения, нежилые помещения и земельные участки. Значительная часть коммерсантов предпочитают не приобретать помещения в собственность, а снимать их. Федеральный портал объявлений «МИР КВАРТИР» предлагает вам снять коммерческое помещение на карте города при помощи актуальной электронной базы, включающей 44 объявления от агентств недвижимости.

В базе аренды коммерческой недвижимости в Советске представлены варианты различных размеров и всех уровней классности. Объект может представлять собой как небольшое отдельное помещение, комплекс в несколько этажей или отдельное здание. Самое маленькое и недорогое помещение имеет площадь 15 кв. м, самый масштабный объект – 1 100 кв. м.

Цены на аренду коммерческой недвижимости в Советске крайне разнообразны – от 300 руб./кв. м до 700 руб./кв. м, так что подобрать подходящий вариант смогут и начинающие коммерсанты, и крупный бизнес. В базе представлены объявления как от собственников, так и от агентств недвижимости (посредников).